| Город | Воронеж |
|---|---|
| Район | Ленинский район |
| Адрес | Ворошилова ул., д. 1 |
| Тип недвижимости | новостройка |
|---|---|
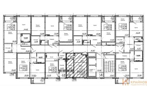
| Площадь | 69.31 |
| Кол-во комнат | 2 |
| Количество этажей в доме | 25 |
| Жилой комплекс | Гран При 2 |
| Этаж | 5 |
| Площадь кухни (м2) | 14.40 |
|---|---|
| Отделка | Подготовка под чистовую отделку |
| Этап строительства | Очередь 1 |
| Материал стен | блочно-монолитный |
| Балкон | лоджия |
| Санузел | раздельный |
